
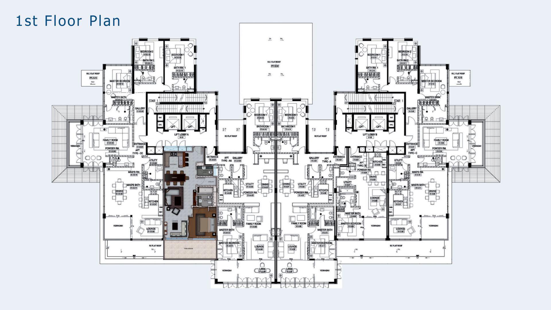
City of Water Residences at Reef Island comprise eight buildings with distinct interior and exterior architectural styles from which residents can choose a home. The diverse selection includes 1-, 2-, 3-, 4- bedroom apartments and Penthouses tastefully appointed and ranging in size from 82 m2 to 510 m2.
Maintenance free exterior with full granite façade, combined with aluminum, sun breakers and tinted double glazed windows. The main entrance rivals with the most luxurious five star reception halls. Fully tiled with either Cream Marphil or Calcatta first quality marble, it features an American walnut impressive desk behind which a round the clock concierge is delighted to serve the residents.
Download BrochureREEF ISLAND MANAGEMENT - LULU TOURISM COMPANY
Telephone: +973 17564349MARKETING SUITES - MOUAWAD MANAGEMENT & MARKETING
Telephone: +973 17562810